Veuillez sélectionner votre lieu de livraison

Le choix du site pays peut avoir un effet sur différents facteurs tels que le prix, les options de livraison et la disponibilité des produits.
Mon interlocuteur
Sélectionner un département
FR(FR)

Configurateur pour système de blocage manuel drylin® T

Commande d'un système complet

Configuration en quelques étapes seulement :

1. Choix du nombre de patins
2. Choix du type de patin
3. Saisie de la longueur des rails en mm
4. Sélection des options pour les patins
5. Sélection des options pour les rails

Remarque :

Vous trouverez des informations détaillées en bas dans les schémas et aux pages indiquées ci-dessous. Vous trouverez des informations plus précises sur les variantes à palier flottant dans les règles de conception.
 
A:Variante à montage latéral avec patin flottant dans l’axe z
B:Variante à montage horizontal avec patin flottant dans l’axe z
C:Variante de montage horizontal avec chariot monté latéralement et patin flottant dans l’axe y
1

Rail

2

Elément de glissement

3

Patin fixe

4

Patin flottant LLZ ou LLY

Application avec palier flottant

Système complet, dispositif de blocage manuel drylin® TK HKA

Etape 1

Choisissez la taille du chariot de guidage.

technical drawing
Taille du chariot :
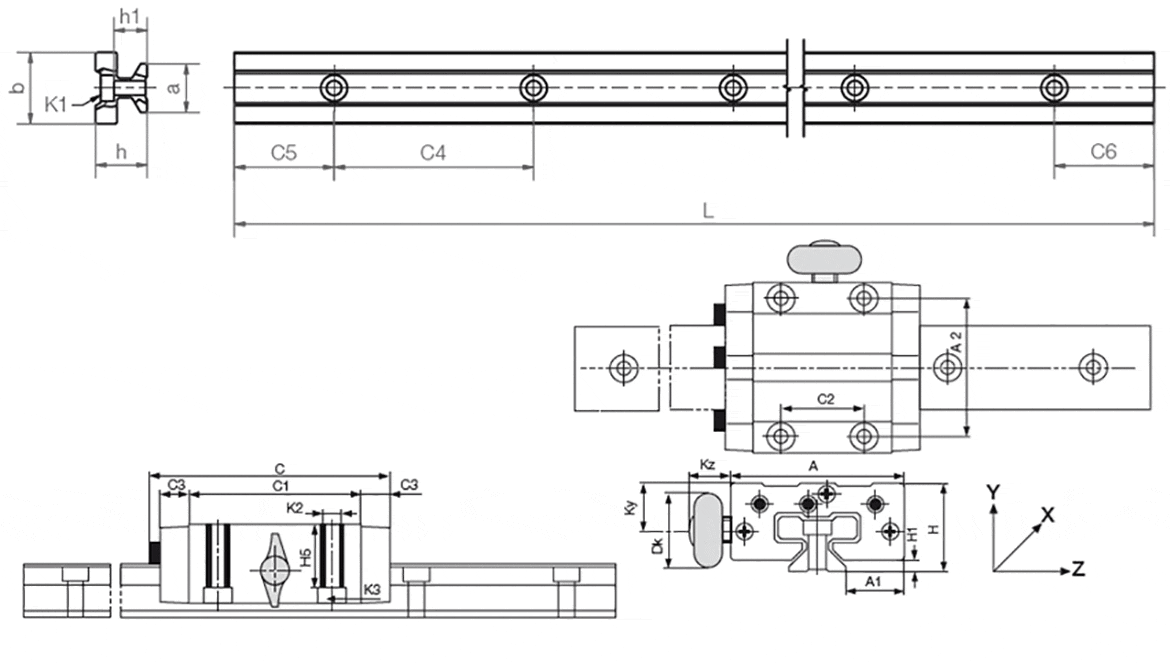
Plan système drylin T avec dispositif de blocage manuel

Cotes et données techniques


Rail de guidage
 
Référence Poids
[kg/m]
L
maxi
a
-0,2
C4 C5
mini
C5
maxi
C6
mini
C6
maxi
h h1 K1 pour vis
DIN 912
b ly
[mm4]
lz
mm4]
Wby
[mm4]
Wbz
[mm4]
TS-01-15 0,6 4.000 15 60 20 49,5 20 49,5 15,5 10 M4 22 6.440 4.290 585 488
TS-01-20 1 4.000 20 60 20 49,5 20 49,5 19 12,3 M5 31 22.570 11.520 1.456 1.067
TS-11-20   4.000 20 120 20 79,5 20 79,5 19 12,3 M5 31 12.140 6.360 780 620
TS-01-25   4.000 23 60 20 49,5 20 49,5 21,5 13,8 M6 34 34.700 19.300 2.041 1.608
TS-01-30   4.000 28 80 20 59,5 20 59,5 26 15,8 M8 40 70.040 40.780 3.502 2.832
Perçage standard symétrique C5 : C6
 
Patin
 
Référence Poids
[kg]
H
±0,35
A C A1
±0,35
A2 C1 C2 C3 H1
±0,35
H5 Filetage K2 Couple de serrage
maxi
[Nm]
K3 pour vis
DIN 912
TW-01-15 0,11 24 47 74 16,0 38 50 30 9 4,0 16,0 M5 1,5 M4
TW-01-20 0,19 30 63 87 21,5 53 61 40 10 5,0 19,8 M6 2,5 M5
TW-01-25 0,29 36 70 96 23,5 57 68 45 11 5,0 24,8 M8 6,0 M6
TW-01-30 0,50 42 90 109 31,0 72 79 52 12 6,5 27,0 M10 15,0 M8

Dimensions du dispositif de blocage manuel
 
Référence Taille Kz Ky Dk Filet du blocage manuel
TW-01-15-HKA 15 19 11,5 20 M6
TW-01-20-HKA 20 18 15 28 M8
TW-01-25-HKA 25 17 19 28 M8
TW-01-30-HKA 30 20 21,5 28 M8


Les termes "Apiro", "AutoChain", "CFRIP", "chainflex", "chainge", "chains for cranes", "ConProtect", "cradle-chain", "CTD", "drygear", "drylin", "dryspin", "dry-tech", "dryway", "easy chain", "e-chain", "e-chain systems", "e-ketten", "e-kettensysteme", "e-loop", "energy chain", "energy chain systems", "enjoyneering", "e-skin", "e-spool", "fixflex", "flizz", "i.Cee", "ibow", "igear", "iglidur", "igubal", "igumid", "igus", "igus improves what moves", "igus:bike", "igusGO", "igutex", "iguverse", "iguversum", "kineKIT", "kopla", "manus", "motion plastics", "motion polymers", "motionary", "plastics for longer life", "print2mold", "Rawbot", "RBTX", "readycable", "readychain", "ReBeL", "ReCyycle", "reguse", "robolink", "Rohbot", "savfe", "speedigus", "superwise", "take the dryway", "tribofilament", "tribotape", "triflex", "twisterchain", "when it moves, igus improves", "xirodur", "xiros" and "yes" sont des marques protégées de la société igus® en République fédérale d'Allemagne et le cas échéant à niveau international. Il s'agit ici d'une liste non exhaustive de marques (demandes de marques en cours ou marques déposées par exemple) de la société igus ou de sociétés affiliées à igus en Allemagne, dans l'Union européenne, aux États-Unis et/ou dans d'autres pays ou juridictions.

La société igus® SE & Co. KG signale qu'elle ne vend pas de produits des sociétés Allen Bradley, B&R, Baumüller, Beckhoff, Lahr, Control Techniques, Danaher Motion, ELAU, FAGOR, FANUC, Festo, Heidenhain, Jetter, Lenze, LinMot, LTi DRiVES, Mitsubishi, NUM, Parker, Bosch Rexroth, SEW, Siemens, Stöber ni de tous les autres fabricants d'entraînements indiqués sur ce site Web. Les produits proposés par igus® sont des produits de la société igus® SE & Co. KG